Max Dudler (Architekt), Umwandlung Kasernengelände zu Wohnquartier, "Turley Barracks",  Fritz-Salm-Str. 3, 68167 Mannheim
© Stefan Müller, Berlin
Max Dudler (Architekt), Umwandlung Kasernengelände zu Wohnquartier, "Turley Barracks",  Fritz-Salm-Str. 3, 68167 Mannheim
© Stefan Müller, Berlin

Turley Areal Mannheim | Alte Kaserne, neue Nutzung.

Wie muss ein ergänzender Neubau auf den Bestand reagieren und was ist hierbei angemessen? Fragen, die Max Dudler mit seinem Projekt auf dem Turley Areal in Mannheim gekonnt beantwortet. Das neu entstandene Quartier verknüpft den 120jährigen Albau einer ehemaligen Kaserne stimmig mit drei monolithischen Neubauten. Atmosphärisch wird das Viertel geprägt von der reduzierten, vom Bestand inspirierten Architektursprache. Die Bebauung zeichnet sich durch einen klaren Materialkanon und die massive, ohne zusätzliche Dämmung auskommende Ziegelbauweise aus.

Hier wird Geschichte spürbar.

 

1899 wird die Kaiser-Wilhelm-Kaserne in Mannheim in Betrieb genommen. Nach dem Ende des 2. Weltkriegs 1945 übernimmt sie die US-Armee und nutzt sie unter dem Namen "Turley Barracks" bis 2007 aktiv als Stützpunkt. Seit 2012 entsteht bis zur geplanten Fertigstellung der gesamten Bebauung in diesem Jahr (2023) auf den Flächen im Mannheimer Stadtteil Neckarstadt-Ost ein neues Stadtquartier: 13 Hektar werden  zu einer urbanen Mischung verschiedener Wohnformen, öffentlicher Nutzung und Gewerbe und schaffen Raum für insgesamt 1.700 Bewohner:innen und 650 Arbeitsplätze.

Als Teil der Umwandlung des ehemaligen Kasernengeländes besteht der von Max Dudler gestaltete Quartiersbereich aus zwei Wohngebäuden, einer Kita und einem denkmalgeschützten Kasernengebäude aus der Kaiserzeit. Im Zusammenspiel mit dem Bestandsbau als prägendem Element entsteht eine spannende Symbiose aus Alt und Neu.

Max Dudler (Architekt), Umwandlung Kasernengelände zu Wohnquartier, "Turley Barracks",  Fritz-Salm-Str. 3, 68167 Mannheim
© Stefan Müller, Berlin

Die drei monolithischen Neubauten bilden gemeinsam mit dem Bestandsbau ein Karrée und gruppieren sich zu einem neuen zentralen Stadtplatz. Etwas erhöht gelegen, gliedert dieser die Freiflächen auf dem Gelände und wird zum sozialen Ort für die Bewohner. Gassen, Rücksprünge und Gebäudehöhen entwickeln sich aus der städtebaulichen Situation. 

In den zwei neuen Wohngebäuden sind 19 Wohnungen mit zwei bis fünf Zimmern entstanden, Ein gemeinsames Untergeschoss verbindet beide Bauten und bietet neben Keller-, Wasch- und Trockenräumen eine Tiefgarage. Zusätzlich wurden in den Erdgeschossen der Wohnbauten Büroflächen und eine Galerie angeordnet, um den Stadtraum zu beleben. Die Kita bietet Platz für 40 Kindergarten- und 20 Krippenkinder. 

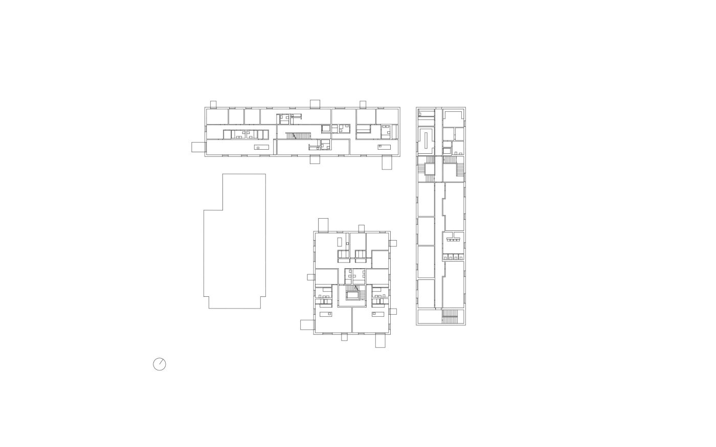
Max Dudler, Schnitt, Lageplan, Grundriss, Ansicht; Umwandlung Kasernengelände zu Wohnquartier, "Turley Barracks",  Fritz-Salm-Str. 3, 68167 Mannheim
© Max Dudler GmbH
Max Dudler (Architekt), Umwandlung Kasernengelände zu Wohnquartier, "Turley Barracks",  Fritz-Salm-Str. 3, 68167 Mannheim
© Stefan Müller, Berlin
Damals und heute ohne zusätzliche Dämmschicht.
 

Schon beim Eintreten in das Quartier spürt man die starken Beziehungen zwischen den einzelnen Gebäuden. Zurückhaltend, schlicht und geradlinig in ihrer Erscheinung passen sich die Neubauten an den Bestand an. Bei der Wahl von Materialität und Farbgebung stand der Zusammenklang von alter und neuer Architektur im Fokus. 

Wie schon im 19. Jahrhundert sollte massiv und einschalig gebaut werden  reduziert auf das Wesentliche und ohne zusätzliche Dämmschicht. Die Gebäude beschränken sich auf wenige einfache Materialien: verputzter Ziegel, tragender Stahlbeton, Holz und Stahl. Mit ihren massiv aus Poroton-Ziegeln gemauerten Wänden beruht die Architektur auf einer zukunftsträchtigen wie traditionellen Bauweise. Ganz im Sinne des reduzierten Konzepts wählten die verantwortlichen Architekt:innen rund um Max Dudler einen Ziegel, der es erlaubt ohne Zusatzdämmung ein energetisch funktionierendes Gebäude im KfW-55-Effizienzhausstandard zu bauen. Der Poroton S10-MW mit einer integrierten Füllung aus Mineralwolle erfüllte dabei in einer Wandstärke von nur 36,5 cm alle Anforderungen an Energieeffizienz sowie Statik, Schall- und Brandschutz. Mit einem neutralen Kalkgipsputz für die Innenwände und einem 2 cm starken, mineralischem Leichtputz für die Fassade zeigen sich die Gebäude von beiden Seiten authentisch und bürgen für eine solide, nachhaltige Bausubstanz. 

 

"Wenn jahrhundertealte Bausubstanz richtig in die Gegenwart transferiert wird, entsteht daraus moderne, zeitlose Architektur." — Max Dudler
Max Dudler (Architekt), Umwandlung Kasernengelände zu Wohnquartier, "Turley Barracks",  Fritz-Salm-Str. 3, 68167 Mannheim
© Stefan Müller, Berlin
Mal groß, mal klein - auf alle Fälle ein Balkon.
 

Max Dudler beweist auch bei der Fassadengestaltung seinen Blick fürs Detail. Die an den Bestandsbau angelehnten Fensterformen setzen sich durch stählerne Einfassungen und Faltläden bewusst von dem massiven Mauerwerk ab - bleiben jedoch im Farbschema des Ensembles.  Je nach Raumsituation bilden sie unterschiedlich große Balkone aus und geben so jeder Wohneinheit ihren Freisitz. Fast scheint es, als würden die Balkone ein Stück weit auf den Bestandsbau zeigen, um ihn in den Mitelpunkt zu setzen. Besonderes Augenmerk wurde auch auf den Sockel aus rot geschliffenem Neckartäler Hartsandstein gelegt, der den regionalen Stein der alten Kasernengebäude aufgreift und eine Überleitung zu dem in gleichem Stein gepflasterten Quartiersplatz schafft. 

 

"Es ist einfach, ein Haus mit 100 beliebigen Details zu bauen. Wenn man nur auf 10 Details setzt wie wir,  muss jedes Detail perfekt sein." — Max Dudler
Konsequent ehrlich.

 

Die Beschränkung auf wenige einfache Materialien setzt sich im Innern der Gebäude fort: Ziegel, Holz, Beton und Stahl, mehr braucht es nicht. So simpel und doch so wirkungsvoll spiegelt sich darin die reduzierte Haltung wider. Der tragende Kern und die Geschossdecken aus Stahlbeton bleiben in den Innenräumen stets sichtbar und verleihen den Gebäuden eine Ehrlichkeit, die sich konsequent durch das ganze Projekt zieht. Fischgrätparkett, Holzfenster und die verputzten Ziegelwände bilden in den Wohnungen einen warmen Kontrast.  

Mit der vom Bestand inspirierten Architektursprache und der Authentizität der eingesetzen Materialien ist es Max Dudler gelungen, dem Turley Areal eine ganz besondere Atmosphäre zu verleihen. 

 

Max Dudler (Architekt), Umwandlung Kasernengelände zu Wohnquartier, "Turley Barracks",  Fritz-Salm-Str. 3, 68167 Mannheim
© Stefan Müller, Berlin

„Wir haben lange gesucht, um ein Produkt zu finden, das allen Ansprüchen gerecht wird. Ein einheitlicher Putzgrund mit minimierter Rissgefahr war uns wichtig. Der Hersteller der Ziegel hat viele standardisierte Systemkomponenten für Verkleidungen von Stürzen, Decken und Stützen im Programm, so dass wir ohne kostenintensive Sonderanfertigungen arbeiten konnten“ , so Projektarchitekt Vojtech Bast, harris + kurrle architekten bda, Stuttgart

Geschäftsführer BE Baumschlager Eberle Berlin, Jaeger, Portraitfoto, Objekt Unionhilfswerk Berlin
© Stefanie Aumiller

„Wir haben lange gesucht, um ein Produkt zu finden, das allen Ansprüchen gerecht wird. Ein einheitlicher Putzgrund mit minimierter Rissgefahr war uns wichtig. Der Hersteller der Ziegel hat viele standardisierte Systemkomponenten für Verkleidungen von Stürzen, Decken und Stützen im Programm, so dass wir ohne kostenintensive Sonderanfertigungen arbeiten konnten“ , so Projektarchitekt Vojtech Bast, harris + kurrle architekten bda, Stuttgart

Zahlen und Fakten

  • Objekt: Turley Areal Mannheim 
  • Umfang: 2 Mehrfamilienhäuser mit 19 WE sowie einigen Büro- und Gewerbeeinheiten im Erdgeschoss, 1 Kita mit 60 Plätzen
  • Standort: Fritz-Salm-Str. 3, 68167 Mannheim 
  • Architektur: Max Dudler GmbH, Berlin
  • Bauherr: Sebastian Wipfler, Wipfler Turley Immobilien GmbH & Co. AG

  • Außenwände: Poroton S10-36,5-MW und Poroton-Systemergänzungen (Deckenrandschalen, Laibungsziegel, U-Schalen, Wärmedämmstürze, u.w.)
  • U-Wert der Außenwände: 0,26 W(m²K)
  • Energetischer Standard: KfW-55-Energieeffiizienzhaus

  • Fertigstellung: 2021

Auszeichungen:

 

Mehr Objektberichte

Produktkataloge

Lernen Sie unsere Baustoffe und Lösungen kennen! Starten Sie Ihre Suche hier.

Alle Produkte
Alle Dowloads
Preislisten, Broschüren, Datenblätter und vieles mehr

Newsletter abonnieren

Die wichtigsten News in Ihr E-Mail-Postfach.

Social Media

Wir sind auf Instagram, LinkedIn, Facebook und Youtube aktiv. Lassen Sie sich inspirieren, werden Sie Fan und teilen Sie Ihre Meinung mit.

Finden Sie Baustoffhändler in Ihrer Nähe.