Haus-im-Haus-Prinzip, Ausbauhaus, Studio CO NOW, CoNow, c/o now, Plan-T8-36,5, Planziegel-T8-36,5
© Zara Pfeifer

Preisgekröntes Haus-in-Haus-Projekt in Schmergow | Where the Wild Morels Grow

In einer Zeit, in der Umweltschutz und Nachhaltigkeit zunehmend an Bedeutung gewinnen, steht die Baubranche vor der Herausforderung, ressourcenschonende Alternativen zu entwickeln. Die Antwort des Berliner Architekturbüros Studio c/o now darauf: ein Haus im Haus. Sowohl in der Nutzung als auch in der Materialauswahl zirkulär gedacht. „Where the Wild Morels Grow“ orientiert sich dabei an französischen Architekturen der 1980 / 90er Jahre von Jourda & Perraudin und Lacaton & Vassal, die industriell gefertigte Gewächshäuser als Ausbauhäuser verwendeten.

Der Traum vom Haus.

 

Die Grundidee der zirkulären Bauweise beruht auf dem Prinzip der Wiederverwendung, des Recyclings und der Langlebigkeit von Baumaterialien. Doch nicht nur in der Bauweise muss zirkulär gedacht werden. Ein Haus muss je nach Lebenssituation mit seinen Bewohner:innen wachsen, sich verändern und anpassen können. Dabei natürlich nicht zu teuer sein, nah an einer Stadt liegen und im besten Fall angemessen groß sein. Und das alles dann auch noch mitten in Berlin? Ein Ding der Unmöglichkeit.

Also blieb hier nur eine Lösung: Ab auf’s Land. Von Berlin nach Brandenburg. 

Schnell wurde klar, dass es bei dem gesetzten Budgetrahmen der Berliner Bauherrenfamilie jedoch neuer Planungsansätze für den "Traum vom Haus" bedurfte. Eine erste Überschlagsrechnung mit den Kennwerten des BKI (Baukosteninformationszentrum Deutscher Architektenkammern) übersetzte die finanziellen Mittel in nur etwa 70 m² aus Beton gegossenen Wohnraum - und damit eine Platzeinbuße gegenüber der Berliner Wohnsituation. So entwickelte Studio c/o now die Idee, eine Fertighalle aufzustellen , wie sie auch in der Region Osthavelniederung von Landwirtschaften oder Pferdehöfen genutzt werden - und besann sich auf das Haus-im-Haus-Prinzip der umgenutzten Gewächshäuser französischer Architektur-Ikonen.

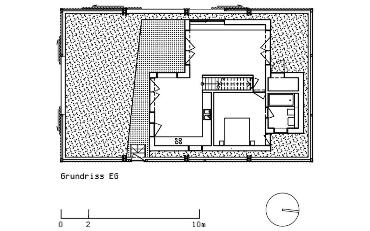
Mit dem Konzept einer Halle und einem beheizbaren "Kernhaus", das sich im Inneren witterungsgeschützt und dem Budget entsprechend über die Zeit Baustein für Baustein erweitern lässt, war die passende Lösung gefunden. 

Der Projekttitel "Where the Wild Morels Grow" nimmt dabei nicht nur Bezug zur umgebenden Natur. Er verweist auch auf das Wachstum des Baus, der sich wie wilde Morcheln ohne Ordnungsprinzip und Einflussnahme der Architekt:innen weiterentwickeln kann. 

„Die Welt steckt nicht nur in Krisen, sie verändert sich fortlaufend und dauerhaft. Wir dürfen deshalb auch nicht damit aufhören, unsere Gebäudetypen und Lebensräume neu zu denken.” 
— Studio c/o now

[Duy An Tran, Tobias Hönig, Ksenija Zdesar, Paul Reinhardt, Markus Rampl, Andrijana Ivanda]

 

 

Von Anbau und Rückbau.

 

Gesagt, getan. Angelehnt an die landwirtschaftlich genutzten Hallen in der direkten Umgebung fiel die Wahl der Auftraggeber:innen auf eine Halle aus vorgefertigten Holzträgern. die mit Trapezblechen im Wandbereich und Sandwichpaneelen im Dachbereich verkleidet wurde. Teilweise öffenbar, teilweise geschlossen, teilweise transparent und mit zwei großen Schiebetoren. 

Im Inneren, gut geschützt vor Witterung und äußeren Einflüssen, findet man das 90 m² große, beheizbare Herzstück des Projekts: das "Kernhaus" bildet eine Art Basis und dient als Ausgangspunkt für alles, was noch kommen mag. Ganz nach Bedarf können Volumina ergänzt oder auch zurückgebaut werden, ohne speziell robuste Materialien oder komplizierte Bautechniken, wie aufwendige Abdichtungsmaßnahmen, einsetzen zu müssen.

Rund 65 m² Terrasse und Dach-Loggia sowie 60 m² Indoor-Garten finden heute in der klimatischen Zwischenschicht der Halle Platz. Vielleicht wird aus dem aufgesetzten Werkstattraum und der Loggia im Obergeschoss einmal ein Homeoffice, vielleicht wird das Haus auf der Fläche des Indoor-Gartens erweitert oder das Obergeschoss irgendwann gar nicht mehr benötigt? Das Haus-im-Haus-Konzept kann auf jede Lebenssituation der Bewohner:innen reagieren und dementsprechend angepasst werden.

 

 

Einfach gebaut, zirkulär gedacht.

 

Die massive Ziegelbauweise des eingeschossigen "Kernhauses" schafft eine solide Grundlage für alle zukünftigen Veränderungen und ermöglicht zugleich einen unkomplizierten Wandaufbau - einschalig, Stein auf Stein.

Zum Einsatz kam der unverfüllte Poroton Planziegel-T8 in einer Stärke von 36,5 cm für die Außenwände, mit dem ohne zusätzliche Dämmmaßnahmen ein U-Wert von 0,21 W/(m²K) erreicht werden konnte. Nicht zuletzt wegen seines natürlichen Wärmeschutzes, seiner Langlebigkeit und Umweltverträglichkeit ist der Baustoff Ziegel eine nachhaltige Wahl. Für die Innenwände wurde analog zu den Außenwänden der Poroton Planziegel-T in 17,5 cm verbaut, welcher ebenfalls aus rein natürlichen Materialien besteht. Die Ziegelwände bieten darüber hinaus den Vorteil, sowohl Feuchtigkeit als auch Temperaturen zu regulieren. So wird eine Schimmelbildung verhindert und eine gesunde Raumluft geschaffen.

Von außen teilweise geschlämmt, von innen verputzt, entstand so das ideale “Kernhaus”, das nicht nur im Sinne des Weiter- und Umbauens einem zirkulären Ansatz folgt, sondern auch im Falle eines Rückbaus. Denn schon heute sind Poroton-Ziegel als rein mineralischer Baustoff nahezu vollständig recyclebar und werden als Teil hochwertiger Gesteinskörnungen im Straßen-, Wege- und Sportplatzbau oder als Vegetationssubstrat wiederverwendet. 

 

Preisgekrönte Architektur für wegweisende Konzepte.

 

Studio c/o now verbindet mit dem Projekt “Where the Wild Morels Grow” eine zirkuläre Nutzung mit einer zirkulären Bauweise und zirkulären Baumaterialien. Dabei tragen sie mit unkonventionellen Ideen dazu bei, einen langfristig lebenswerten und wandelbaren Wohnraum zu schaffen, Durch die einfachen Anbau- und Rückbauoptionen bietet das Haus zudem die Möglichkeit, die typologische Limitierung auf eine Kernfamilie zugunsten anderer Wohnformen zu durchbrechen.

 

Nicht zuletzt wegen seines vorausschauenden Blickes in die Zukunft, wurde das Berliner Architekturbüro mit dem Bauwelt-Preis 2023 “Das erste Haus” ausgezeichnet. Dieser Preis umfasst jede Form des ersten, in eigener Verantwortung realisierten Werkes und zeichnet herausragende Konzepte aus, welche anschließend im Deutschen Architekturmuseum in Frankfurt ausgestellt werden. 

 

Das Projekt wurde ebenfalls für den DAM-Preis 2023 des Deutschen Architekturmuseums nominiert und hat es hier bis auf die Shortlist geschafft.  

 

Beim vom Calley-Verlag ausgeschriebenen Wettbewerb "Häuser des Jahres" zählt das innovative Familiendomizil zu den 50 besten Einfamilienhäusern 2023.

 

„Wir haben lange gesucht, um ein Produkt zu finden, das allen Ansprüchen gerecht wird. Ein einheitlicher Putzgrund mit minimierter Rissgefahr war uns wichtig. Der Hersteller der Ziegel hat viele standardisierte Systemkomponenten für Verkleidungen von Stürzen, Decken und Stützen im Programm, so dass wir ohne kostenintensive Sonderanfertigungen arbeiten konnten“ , so Projektarchitekt Vojtech Bast, harris + kurrle architekten bda, Stuttgart

Geschäftsführer BE Baumschlager Eberle Berlin, Jaeger, Portraitfoto, Objekt Unionhilfswerk Berlin
© Stefanie Aumiller

„Wir haben lange gesucht, um ein Produkt zu finden, das allen Ansprüchen gerecht wird. Ein einheitlicher Putzgrund mit minimierter Rissgefahr war uns wichtig. Der Hersteller der Ziegel hat viele standardisierte Systemkomponenten für Verkleidungen von Stürzen, Decken und Stützen im Programm, so dass wir ohne kostenintensive Sonderanfertigungen arbeiten konnten“ , so Projektarchitekt Vojtech Bast, harris + kurrle architekten bda, Stuttgart

Zahlen und Fakten

  • Objekt: "Where the Wild Morels Grow" - Haus Schmergow
  • Standort: 14550 Groß Kreutz (Havel), Ortsteil Schmergow
  • Architektur: Studio c/o now, Berlin

  • Bauherrschaft: privat

  • Bruttogeschossfläche (BGF):  200 m² Halle mit aktuell 90 m² "Kernhaus" und 65 m² Terrassen-/Dachfläche und 60 m² Indoor-Garten

  • Bauweise Halle: vorgefertigte Elemente in Holzbauweise mit 2 Schiebetoren sowie geschlossenen, opaken, transparenten und teilweise öffenbaren Trapezblechen im Wandbereich und Sandwichpanelen im Dachbereich
  • Bauweise "Kernhaus": monolithische Ziegelbauweise
  • Produkteinsatz: Außenwände mit Poroton Planziegel-T8 in 36,5 cm; Innenwände mit Poroton Planziegel-T in 17,5 cm
  • Fertigstellung: 2022

Auszeichnungen

Mehr Objektberichte

Produktkataloge

Lernen Sie unsere Baustoffe und Lösungen kennen! Starten Sie Ihre Suche hier.

Alle Produkte
Alle Dowloads
Preislisten, Broschüren, Datenblätter und vieles mehr

Newsletter abonnieren

Die wichtigsten News in Ihr E-Mail-Postfach.

Social Media

Wir sind auf Instagram, LinkedIn, Facebook und Youtube aktiv. Lassen Sie sich inspirieren, werden Sie Fan und teilen Sie Ihre Meinung mit.

Finden Sie Baustoffhändler in Ihrer Nähe.